Moderne Doppelhaushälfte zur Miete – Erstbezug in beliebter Wartenberger Wohngegend!
Diese hochwertig gebaute Doppelhaushälfte aus dem Jahr 2025 bietet mit ca. 170m² Wohnfläche auf einem ca. 476m² großen Grundstück ein ideales Zuhause für Familien. Es handelt sich um einen Erstbezug, sodass Sie in ein modernes und ungenutztes Wohnumfeld einziehen können.
Die Immobilie überzeugt durch ihre massive Bauweise und eine durchdachte Raumaufteilung mit insgesamt sechs Zimmern, darunter drei Schlafzimmer, ein Büro, ein Gäste- oder Hobbyzimmer/ Hobbyraum und ein großer Wohn- und Essbereich. Der großzügige, offen gestaltete Wohn- und Essbereich mit direktem Zugang zur Südterrasse schafft eine helle und freundliche Wohnatmosphäre. Große Fensterfronten sorgen zusätzlich für viel Tageslicht.
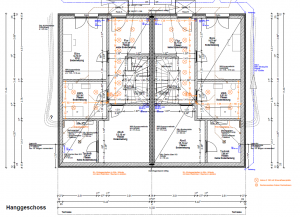
Durch den geräumigen Eingangsbereich gelangen wir direkt in das Hanggeschoss. Dort befindet sich ein Büro, ein Hauswirtschaftsraum/ Badezimmer, der Technikraum sowie ein großer Hobbyraum/ Abstellraum.
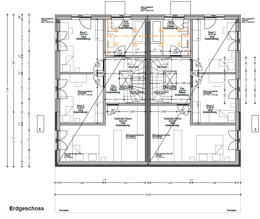
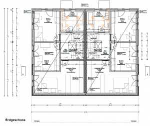
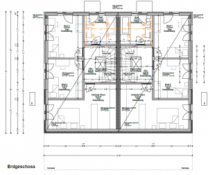
Über das Treppenhaus geht es in das Erdgeschoss. Auf dieser Ebene befinden sich die drei Schlafzimmer sowie das Badezimmer ausgestattet mit Badewanne, Dusche, Toilette und Fenster.
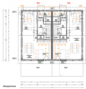
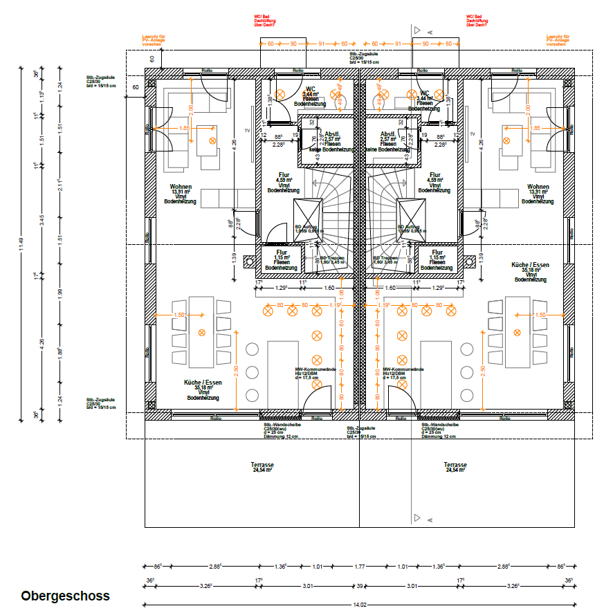
Im Obergeschoss befindet sich der große Wohn- und Essbereich, der durch die Weitläufigkeit und die Helligkeit dank der großen Fensterfronten begeistert. Der direkte Zugang zum Garten und zur Terrasse sorgt für eine angenehme Wohnatmosphäre.
Zudem befinden sich auf dieser Ebene ein Abstellraum sowie ein Gäste-WC.
Ausstattungshighlights:
- Moderne Luft-Erdwärmepumpe für umweltfreundliches Heizen
- Fußbodenheizung in allen Räumen
- Kaminanschluss vorhanden
- Elektrische Rollläden
- Dezentrale Lüftungsanlage
- Kabel-TV und Internetanschluss
- Große Garage plus zwei Außenstellplätze
- Südlich ausgerichteter Garten mit Terrasse
Die Immobilie wird ohne Einbauküche angeboten – somit haben Sie die Möglichkeit, Ihre Küche ganz nach Ihren eigenen Vorstellungen zu gestalten.
Die ruhige Lage bietet viel Freiraum für Kinder und Erholung im Grünen. Gleichzeitig profitieren Sie von einer sehr guten Infrastruktur: Einkaufsmöglichkeiten, Schulen und öffentliche Verkehrsanbindungen befinden sich in der Nähe.
Fazit:
Diese Doppelhaushälfte verbindet modernes, energieeffizientes Wohnen mit einer familienfreundlichen Lage – perfekt für alle, die auf der Suche nach einem neuen Zuhause mit Komfort und Stil sind.


