Diese charmante Doppelhaushälfte befindet sich in ruhiger und begehrter Wohnlage von Erding-Langengeisling. Eingebettet in ein gewachsenes, familienfreundliches Wohngebiet mit überwiegend Ein- und Zweifamilienhäusern, bietet die Immobilie ein angenehmes Wohnumfeld mit hohem Erholungswert und gleichzeitig sehr guter Anbindung an die Stadt Erding sowie den Großraum München.
Das Haus überzeugt durch einen durchdachten Grundriss sowie durch die solide Bausubstanz. Der Wohn- und Essbereich bildet das Herzstück des Hauses und ist mit einem hochwertigen Eichenparkettboden ausgestattet, der für eine warme und einladende Wohnatmosphäre sorgt. Ein besonderes Highlight ist der vorhandene Grundofen (Speicher- bzw. Kachelofen), ein massiv gemauerter Holzofen aus Schamotte, der angenehme, gesunde Strahlungswärme über viele Stunden abgibt und den Wohnbereich zusätzlich aufwertet.
Die Einbauküche wurde im Jahr 2011 neu angeschafft und fügt sich funktional wie optisch gut in das Gesamtbild des Hauses ein.
Neben dem großem und gemütlichen Küchenbereich und Wohnzimmer, mit direktem Zugang zur Terrasse/ Wintergarten und Garten, befinden sich im Erdgeschoss neben der Garderobe ein Gäste-WC sowie eine Speis/ Abstellraum.
Im Dachgeschoss befindet sich eine ausgebaute Einheit in Form einer 2-Zimmer-Wohnung mit Einliegerwohnungscharakter, ideal nutzbar als Gästebereich, für erwachsene Kinder, Homeoffice oder zur teilweisen Vermietung. In diesem Bereich wurden 2015 neue, größere Fenster eingebaut, die für viel Tageslicht sorgen. Auch im restlichen Haus sind Kunststofffenster mit 2-fach-Verglasung verbaut, die teilweise bereits erneuert wurden. Eine Einbauküche ist ebenfalls vorhanden.
Im ersten Obergeschoss befinden sich neben den drei Schlafzimmern ein weiterer Abstellraum, ein Büro sowie das großzügig geschnittene Badezimmer. Von einem der Schlafzimmer hat man direkten Zugang zum Süd-West Balkon.
Die Beheizung erfolgt über eine Ölheizung aus dem Jahr 1985, ergänzt durch den Kaminofen als effiziente und behagliche Zusatzheizung. Die Außenfassade sowie die Holzverkleidung wurden im Jahr 2022 frisch gestrichen, wodurch sich das Haus auch optisch in einem gepflegten Zustand präsentiert.
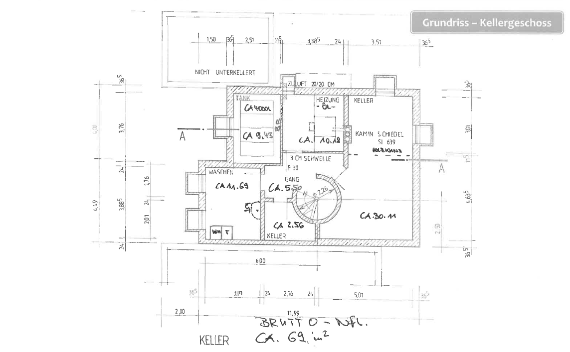
Im Kellerbereich des Hauses stehen zudem weitere Nutzflächen zur Verfügung und es bietet sich viel Stauraum dank der großen Raumflächen neben Technikraum und Waschkeller.
Ein weiteres Highlight ist der großzügige Gartenbereich, der viel Platz für Erholung, Spiel und Gestaltung bietet. Der Garten ist mit verschiedenen Obstbäumen wie Kirsche, Mirabelle, Apfel und Haselnuss bepflanzt und schafft eine naturnahe, grüne Oase mit hohem Freizeit- und Erholungswert. Neben der Terrasse steht eine Art Wintergarten zur Verfügung, der aber nicht gedämmt/ isoliert ist.
Im Zufahrtsbereich des Hauses befindet sich ein Außenstellplatz gefolgt von einer Einzelgarage mit mechanischem Tor und kleiner Montagegrube.
Der Energieausweis wurde im Zuge des Verkaufs beantragt und liegt noch nicht vor.
Insgesamt handelt es sich um eine attraktive Doppelhaushälfte, die durch ihre ruhige Lage, den großzügigen Garten, den besonderen Grundofen sowie die flexible Nutzungsmöglichkeit des Dachgeschosses überzeugt – ideal für Familien, Mehrgenerationenwohnen oder Käufer, die Wohnen und Arbeiten unter einem Dach verbinden möchten.


