Neubauprojekt in Markt Schwaben - 19 hochwertige Eigentumswohnungen!
Willkommen in Ihrem neuen Zuhause oder Ihrer Kapitalanlage mit Zukunft!
In zentraler Lage von Markt Schwaben entsteht ein attraktives Neubauprojekt mit 19 modernen Wohnungen in hochwertiger Ausstattung. Das Projekt vereint zeitgemäßes Wohnen, durchdachte Grundrisse und energieeffiziente Technik – ideal für Eigennutzer wie auch für Kapitalanleger.
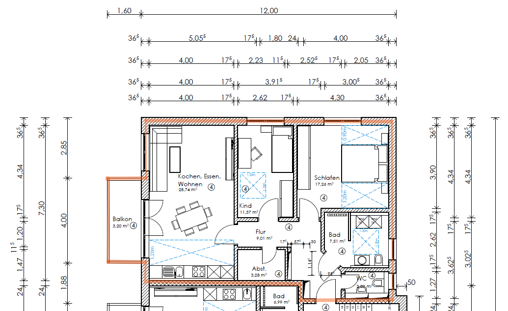
Wohnung Nr. 4 – Helle 3-Zimmer-Wohnung mit schönem Balkon im 1. Obergeschoss!
Diese großzügige 3-Zimmer-Wohnung überzeugt durch einen durchdachten Grundriss, helle Räume und den schönen Balkon:
- Wohnfläche: ca. 81,66 m²
- Zimmer: 3
- Lage: 1. Obergeschoss rechts
Aufteilung der Wohnung:
- Großzügiger Eingangsbereich mit Gäste-WC und Badezimmer zur rechten Hand
- Tageslichtbad mit Dusche, WC, Waschbecken & Waschmaschinenanschluss
- Zwei helle Schlaf-/Kinderzimmer mit großen Fensterflächen
- Abstellraum innerhalb der Wohnung + Kellerabteil
- Offener Wohn-/Essbereich mit Zugang zum Balkon
Kaufpreisaufstellung:
- Wohnung: 592.035,00 €
- Tiefgaragenstellplatz: 28.000 €
- Außenstellplatz: 8.000 €
- Gesamtkaufpreis: 628.035,00 €
Investieren Sie jetzt in zukunftsfähigen Wohnraum mit Substanz, Wert und Perspektive.
Das Neubauprojekt liegt zentrumsnah mit hervorragender Anbindung an die S-Bahn (S2) sowie den öffentlichen Nahverkehr – ideal für Pendler, Familien und alle, die urban und zugleich naturnah wohnen möchten.
Gerne stellen wir Ihnen weitere Unterlagen zur Verfügung oder vereinbaren einen Beratungstermin.
Die Animationen der Innenräume sind Beispielbilder und können abweichen.


