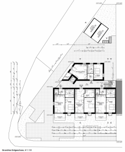
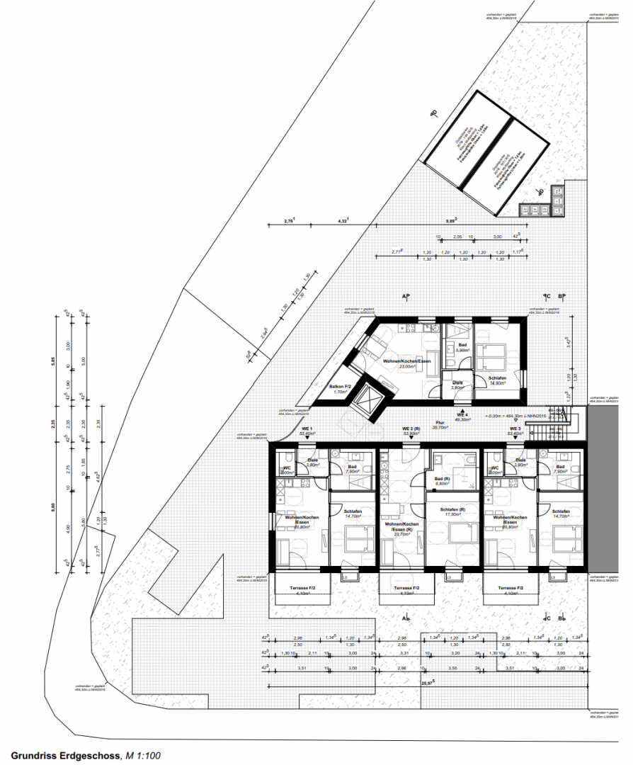
Diese besonders geschnittene 2- Zimmer Erdgeschosswohnung überzeugt mit einem vollständig barrierefreien Zugang und einem durchdachten Grundriss.
Über die großzügige Diele, von der aus alle Räume bequem erreichbar sind, betreten Sie linkerhand das helle Wohnzimmer – den Mittelpunkt der Wohnung. Von hier aus gelangen Sie direkt auf die gemütliche, ebenfalls barrierefreie Terrasse, die zu entspannten Stunden im Freien einlädt.
Die Küche schließt sich praktisch im Wohnbereich an. Alle erforderlichen Anschlüsse sind vorhanden, zudem besteht die Möglichkeit, die Wohnung zu einem attraktiven Vorzugspreis mit einer hochwertigen Einbauküche auszustatten. Ebenso können Sie hier praktischerweise die Waschmaschine integrieren.
Das ruhig gelegene Schlafzimmer bietet ausreichend Platz für ein komfortables Bett und einen geräumigen Kleiderschrank. Zwei Fenster sorgen für angenehmes Licht und eine freundliche Atmosphäre.
Das moderne Badezimmer befindet sich im Eingangsbereich und ist mit einer bodengleichen Dusche, einem Waschtisch sowie einem WC ausgestattet. Ebenso sorgt ein Fenster für optimale Belüftung.
Vor dem Gebäude stehen zahlreiche Parkmöglichkeiten zur Verfügung. Jede Wohnung verfügt darüber hinaus über einen separaten Kellerraum, der zusätzlichen Stauraum bietet.
Diese Wohnung eignet sich auch ideal für seniorengerechtes Wohnen, aber ebenso für Alle, die eine komfortable, gut geschnittene und durchdachte Wohnlösung suchen.


